PROJECTS

Shute Hill Farm, Shute Hill

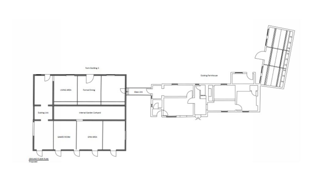
Stansgate Planning are pleased to have secured permission for the conversion of a redundant barn and new glazed link to an existing farmhouse in this rural part of Staffordshire.

The works are part of a wider redevelopment project that has seen Stansgate already secure a number of permissions on the site enable redundant buildings to be brought back into use.

Scroll to Top